Enter your address or APN/TMS to check if this home fits on your property
Enter your property street address or APN/TMS
Pages
Get started with Family First Home Sales
Find, design, and order your next home in a few clicks.
Dealer License #:
Images of homes are solely for illustrative purposes and should not be relied upon. Images may not accurately represent the actual condition of a home as constructed, and may contain options which are not standard on all homes.
$192K - $212K
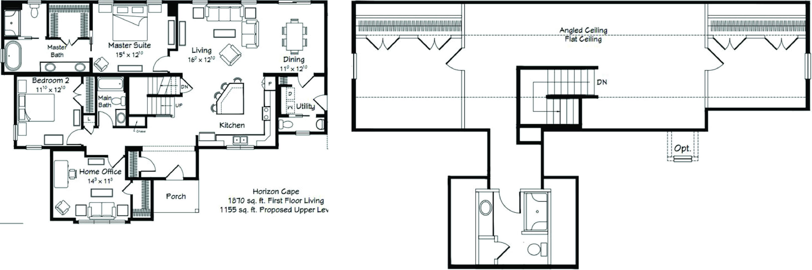
4 Bed | 3 Bath | 3,152 Sq. Ft. | 43' 8" x 58'
$217K - $239K
4 Bed | 3.5 Bath | 3,424 Sq. Ft. | 41' x 54' 4"
$217K - $240K
4 Bed | 3.5 Bath | 3,520 Sq. Ft. | 41' x 66'
$231K - $255K
4 Bed | 3.5 Bath | 2,625 Sq. Ft. | 40' x 45'