Family First Home Sales logo
Floor Plans

3 Bedroom Homes

Merrimack hero, elevation, and exterior home features

Merrimack
3 Bed
2.5 Bath
2,429 Sq. Ft.
38' x 56'
3 Bed
2.5 Bath
2,429 Sq. Ft.
38' x 56'

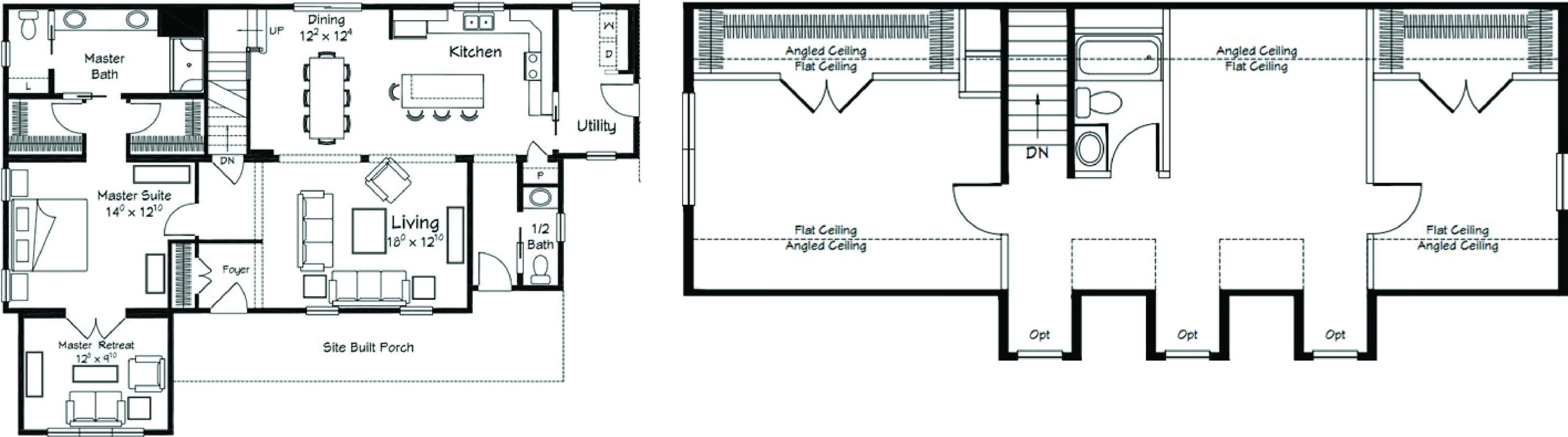
Floor Plan

    Merrimack floor plan home features

    Property map

    Enter your address or APN to check if this home fits on your property

    Enter your property street address or APN

    Merrimack

    $154K - $170K

    3 bedrooms

    2 full bathrooms

    1 half bathroom

    2,429 sq. ft.

    38' x 56'

    See brochureStart your projectDesign home
    Family First Home Sales logo

    Family First Home Sales

    Affordable homes at your fingertips

    Pages

    HomesMapSign upSign in

    Help

    Contact usTerms of ServicePrivacy Policy

    Get started with Family First Home Sales

    Find, design, and order your next home in a few clicks.


    Merrimack

    $154K - $170K

    3 bedrooms

    2 full bathrooms

    1 half bathroom

    2,429 sq. ft.

    38' x 56'

    See brochureStart your projectDesign home
    Sign up

    Dealer License #:

    Powered by BuildTrove.com

    4 Bedroom Homes

    Property Map
    Financing
    Gallery

    Photos

    3D Tour Library

    Video Library

    Contact
    Visit Us
    Blog
    1. Catalog
    2. American Dream Collection
    3. Merrimack

    Exterior & Construction

      Merrimack hero, elevation, and exterior home features



      Images of homes are solely for illustrative purposes and should not be relied upon. Images may not accurately represent the actual condition of a home as constructed, and may contain options which are not standard on all homes.

      View similar homes

      Dearborn ii floor plan home features

      Dearborn ii hero, elevation, and exterior home features

      Dearborn II

      $153K - $169K

      3 Bed | 2.5 Bath | 2,516 Sq. Ft. | 42' 9" x 46'

      View detailsDesign home
      Misty harbor iii floor plan home features

      Misty harbor iii hero, elevation, and exterior home features

      Misty Harbor III

      Fredonia ii floor plan home features

      Fredonia ii hero, elevation, and exterior home features

      Fredonia II

      Old towne floor plan home features

      Old towne hero, elevation, and exterior home features

      Old Towne

      $162K - $179K

      3 Bed | 2.5 Bath | 2,429 Sq. Ft. | 27' 4" x 56' 4"

      View detailsDesign home

      $163K - $180K

      3 Bed | 2.5 Bath | 2,500 Sq. Ft. | 40' x 41'

      View detailsDesign home

      $142K - $157K

      3 Bed | 2.5 Bath | 2,470 Sq. Ft. | 30' x 58'

      View detailsDesign home