Enter your address or APN/TMS to check if this home fits on your property
Enter your property street address or APN/TMS
Pages
Get started with Family First Home Sales
Find, design, and order your next home in a few clicks.
Dealer License #:
Images of homes are solely for illustrative purposes and should not be relied upon. Images may not accurately represent the actual condition of a home as constructed, and may contain options which are not standard on all homes.
$265K - $293K
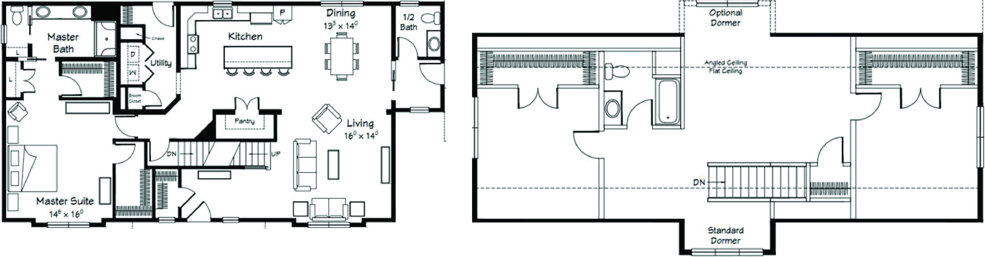
3 Bed | 2.5 Bath | 3,258 Sq. Ft. | 31' 4" x 52'
$227K - $251K
3 Bed | 2.5 Bath | 2,720 Sq. Ft. | 30' x 50'
$222K - $246K
3 Bed | 2.5 Bath | 3,190 Sq. Ft. | 30' x 60'