Enter your address or APN/TMS to check if this home fits on your property
Enter your property street address or APN/TMS
Pages
Get started with Family First Home Sales
Find, design, and order your next home in a few clicks.
Dealer License #:
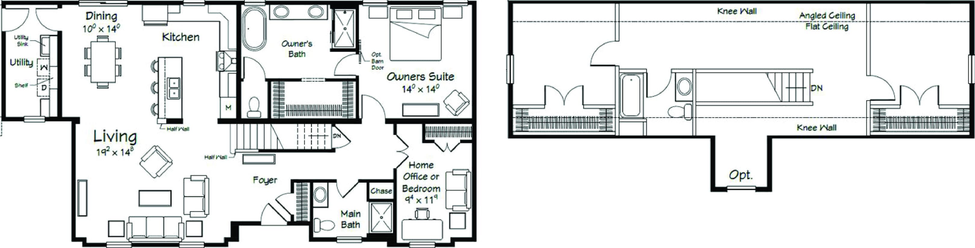
Images of homes are solely for illustrative purposes and should not be relied upon. Images may not accurately represent the actual condition of a home as constructed, and may contain options which are not standard on all homes.
$149K - $165K
4 Bed | 3 Bath | 2,200 Sq. Ft. | 26' 8" x 58' 8"
$166K - $184K
4 Bed | 3 Bath | 1,850 Sq. Ft. | 41' x 58'
$154K - $170K
4 Bed | 3 Bath | 1,754 Sq. Ft. | 27' 4" x 48'
$163K - $180K
4 Bed | 2.5 Bath | 2,064 Sq. Ft. | 27' 4" x 44'