Enter your address or APN/TMS to check if this home fits on your property
Enter your property street address or APN/TMS
Pages
Get started with Family First Home Sales
Find, design, and order your next home in a few clicks.
Dealer License #:
Images of homes are solely for illustrative purposes and should not be relied upon. Images may not accurately represent the actual condition of a home as constructed, and may contain options which are not standard on all homes.
$122K - $134K
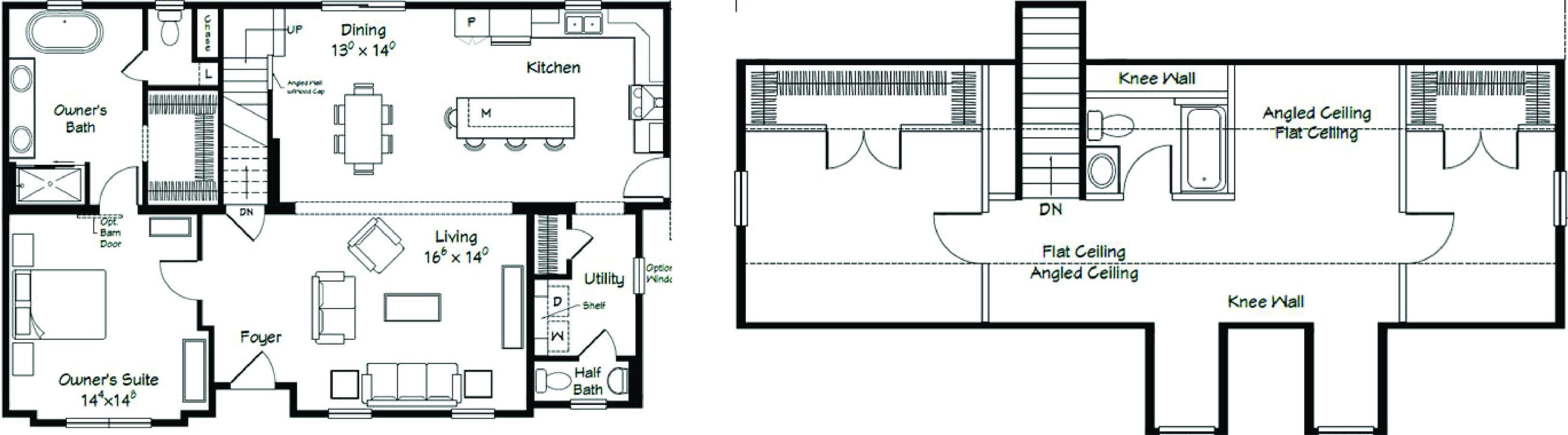
3 Bed | 2 Bath | 2,113 Sq. Ft. | 27' 4" x 50'
$126K - $140K
3 Bed | 2.5 Bath | 1,940 Sq. Ft. | 26' 8" x 48'
$140K - $154K
3 Bed | 2.5 Bath | 2,106 Sq. Ft. | 26' 8" x 52'