Enter your address or APN/TMS to check if this home fits on your property
Enter your property street address or APN/TMS
Pages
Get started with Family First Home Sales
Find, design, and order your next home in a few clicks.
Dealer License #:
Images of homes are solely for illustrative purposes and should not be relied upon. Images may not accurately represent the actual condition of a home as constructed, and may contain options which are not standard on all homes.
$129K - $143K
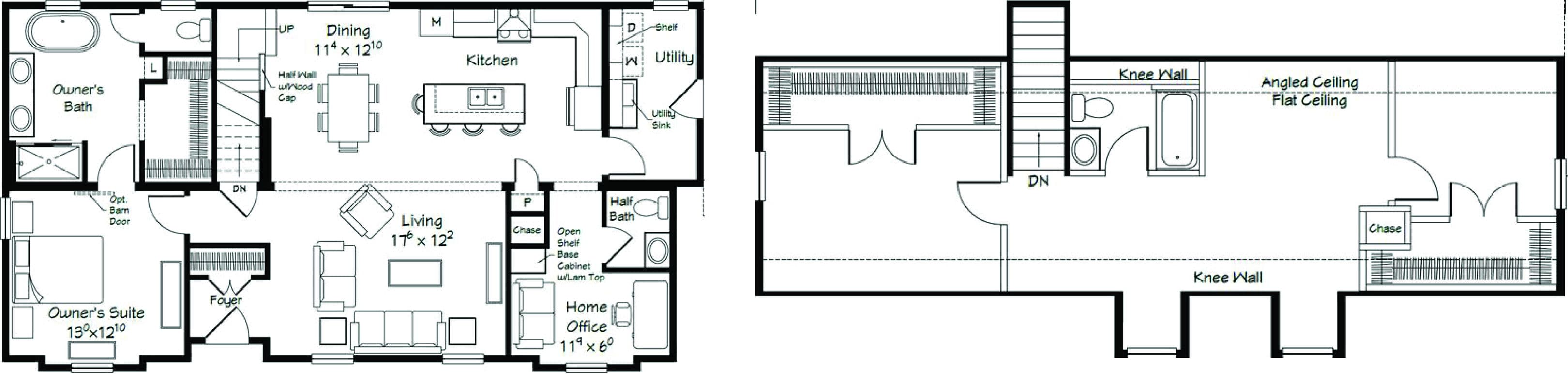
3 Bed | 2.5 Bath | 2,088 Sq. Ft. | 30' x 48'
$147K - $163K
3 Bed | 2.5 Bath | 2,267 Sq. Ft. | 30' x 52'
$130K - $144K
3 Bed | 2 Bath | 2,281 Sq. Ft. | 27' 4" x 54'