Enter your address or APN/TMS to check if this home fits on your property
Enter your property street address or APN/TMS
Pages
Get started with Family First Home Sales
Find, design, and order your next home in a few clicks.
Dealer License #:
Images of homes are solely for illustrative purposes and should not be relied upon. Images may not accurately represent the actual condition of a home as constructed, and may contain options which are not standard on all homes.
$154K - $170K
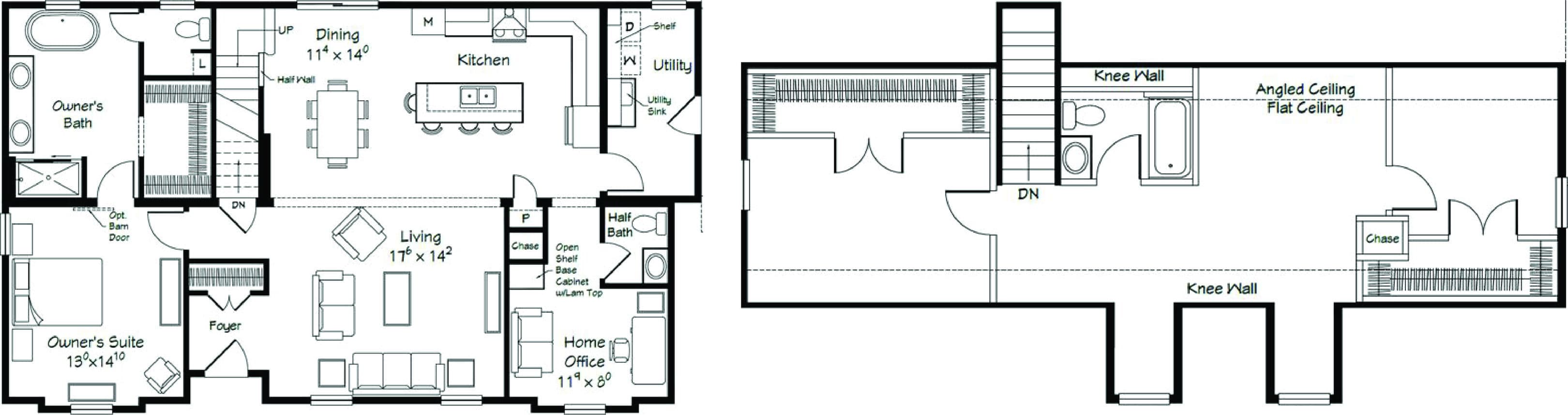
3 Bed | 2.5 Bath | 2,429 Sq. Ft. | 38' x 56'
$140K - $154K
3 Bed | 2.5 Bath | 2,106 Sq. Ft. | 26' 8" x 52'
$142K - $157K
3 Bed | 2.5 Bath | 2,470 Sq. Ft. | 30' x 58'